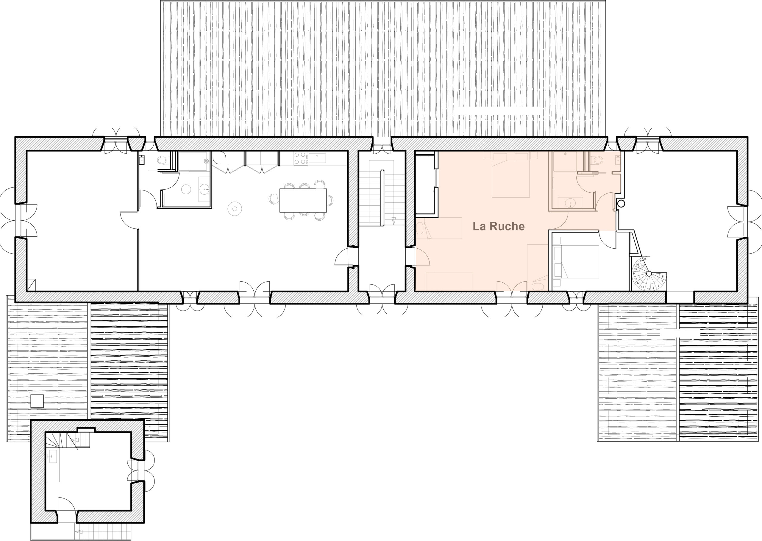
La Ruche est située au 1er étage, de l’autre côté du palier face au Loft.
Cette grande chambre de 35 m² propose différents choix d’aménagement selon vos besoins:
1 lit de 180cm et un divan, ou 2 lits de 90cm et 1 lit de 80cm.
Elle bénéficie d’une salle de bain privative à lumière naturelle, de wc séparés et avec fenêtre.
La Ruche peut accueillir 3 personnes. Pour les touts petits, nous proposons également un lit parapluie et une table à langer.
La Ruche peut accueillir 3 personnes. Pour les touts petits, nous proposons également un lit parapluie et une table à langer.
La Ruchette, petite chambre contigüe bénéficie d’un lit de 140x200cm peut être louée avec La Ruche. Dans ce cas la salle d’eau et les toilettes seront partagés entre les 2 chambres.
L’excellente isolation thermique et acoustique vous permet de savourer un bien être dans de beaux volumes sans nécessiter de climatisation.
Free wi-fi
Les animaux ne sont pas admis dans la Ruche.
La ruche est louée uniquement en extension du Loft ou du Galet ou pour 3 nuits minimum.
TARIFS : La Ruche
Cette chambre, entièrement refaite, n’a pas encore été présentée pour un classement Atout France. C’est pourquoi elle n’est pas encore réservable en ligne.
Vous pouvez néanmoins le réserver par téléphone : +33 (0)6 79 06 87 97 ou par courriel
160€/nuit, +20€/nuit/
TARIFS : La Ruchette
80€/nuit
Locations de 2 nuits minimum.
En option : ménage fin de séjour (70 €)
